English
电话 : 0577-63775980 0577-63775986
邮箱 : sales@globalfeipeng.com
XDQ164 IX型洗涤器(24V)
XDQ167B XL型洗涤器(24V)
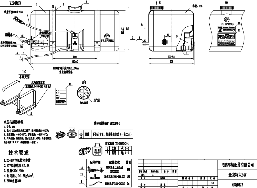
主题 : XDQ167A XL型洗涤器(24V)
了解我们更多资讯产品
在线留言
微信扫一扫 :
首页
产品
Skype
WhatsApp